LEI Nº 2.341,
DE14 DE SETEMBRO DE 2012
REGULAMENTA A APLICAÇÃO DE RECURSOS DO FUNDO MUNICIPAL DE
HABITAÇÃO DE INTERESSE SOCIAL.
O PREFEITO MUNICIPAL DE SANTA TERESA, Estado do Espírito Santo, no
uso de suas atribuições legais conferidas pelo Art.
60 da Lei Orgânica Municipal; Faço saber que a Câmara Municipal aprovou e
eu sanciono a seguinte Lei;
Art. 1º As unidades
habitacionais e outros benefícios definidos na Lei
Municipal 1.840, de 03 de Março de 2008, serão entregues às famílias em
vulnerabilidade social, que se enquadrem em relação aos critérios de seleção,
para a aplicação de recursos do FMHIS - Fundo Municipal de Habitação de
Interesse Social, previsto nesta Lei.
I - A Renda Familiar para a aplicação de recursos
deverá ser de até 3 (três) Salários Mínimos vigente no País, à época do
requerimento;
II - A apuração da situação sócio-econômica será
feita por Assistente Social da Secretaria Municipal de Assistência Social,
através de parecer técnico descrito em Laudo Social, informando a situação
sócioeconômica e a abrangência do Inciso I deste Artigo;
III - Que não possua outro imóvel;
IV - Que residam no Município de Santa Teresa por
período igual ou superior a 03 (três) anos.
Parágrafo Único. Além
dos critérios previstos no Caput deste Artigo, as famílias em
vulnerabilidade social comprovada, terão classificação prioritária, se
estiverem presentes pelo menos um dos critérios abaixo. Servindo os mesmos como
critério de desempate:
I - Famílias que residam em imóvel condenado pela
Defesa Civil ou em situação de coabitação;
II - Que possuam mulher chefe de família, como
beneficiária direta;
III - Que possuam idosos como beneficiários
diretos (mínimo de 3% (três por cento) da composição familiar) conforme
Estatuto do Idoso, habitando sob o mesmo teto; e
IV -
Que possuam pessoas com necessidades especiais habitando sob o mesmo teto.
Art.
2º Os limites para a aplicação dos recursos financeiros do FMHIS - Fundo
Municipal de Habitação de Interesse Social serão os seguintes:
|
ITEM |
DESCRIÇÃO |
VALOR EM VRTE (MÁXIMO) |
|
A |
Aquisição de imóvel
construído, art. 6º, I da Lei municipal
1.840/2008, respeitado o disposto no art. 9º desta Lei; |
15.936,96 |
|
B |
Construção, art. 6º, I, V da Lei municipal 1.840/2008
respeitado o disposto no art. 10 desta Lei e os instrumentos que disciplinam
a aprovação de projetos; |
11.067,33 |
|
C |
Conclusão, Melhoria e
Reforma de unidades exclusivamente residenciais, art.
6º, I, III, IV, VI, VII da Lei municipal 1.840/2008; |
3.541,55 |
|
D |
Locação social, na forma
estabelecida no Decreto nº 474/2009, de 14/12/2009; |
|
|
E |
Arrendamento Rural, desde
que exclusivamente para fins de moradia e/ou exploração de atividade rural; |
3.304,26* * Valor para 12 meses
de arrendamento, não prorrogáveis; |
§ 1º Para
Construção, conforme descrito no item “b”, deste Artigo, deverá haver a
comprovação de posse do terreno exclusivamente através de escritura lavrada em Cartório
de Registro de Imóveis.
§ 2º Para
Arrendamento Rural, na forma descrita no item “e”, deste Artigo, as
solicitações deverão ser encaminhadas através do Sindicato dos Trabalhadores
Rurais de Santa Teresa.
§ 3º A
cessão de recursos ao requerente, quando for o caso, será feita, através de
pagamento exclusivamente através de documento oficial comprobatório da despesa,
até o limite definido no Inciso III do Caput deste Artigo;
Art. 3º Além dos requisitos
anteriores previstos, em relação aos Incisos II,
III e IV todos do Art. 6º da Lei nº 1840/2008, ficam estabelecidos os
seguintes critérios para a aplicação de recursos do FMHIS - Fundo Municipal de
Habitação de Interesse Social:
I - A produção de Lotes Urbanizados para fins
habitacionais e a Urbanização, produção de equipamentos comunitários,
regularização fundiária e urbanística de áreas caracterizadas de interesse
social e a produção de Saneamento Básico, infra-estrutura e equipamentos
urbanos, complementares aos Programas Habitacionais de Interesse Social,
dependerão de projetos previamente aprovados pelos órgãos competentes
Municipais, respeitadas as legislações ambientais e os regulamentos de uso e
ocupação do solo.
Art. 4º Além dos requisitos anteriores
previstos, em relação ao Inciso VI do Art. 6º
da Lei nº 1840/2008, ficam estabelecidos os seguintes critérios para a
aplicação de recursos do FMHIS - Fundo Municipal de Habitação de Interesse
Social:
I - A Recuperação ou produção de imóveis em áreas
encortiçadas ou deterioradas, centrais ou periféricas para fins habitacionais
de interesse social dependerá de projeto previamente aprovado pelos órgãos
competentes Municipais, respeitadas as legislações ambientais e os regulamentos
de uso e ocupação do solo;
II - Os projetos a que se refere o inciso
anterior deverão receber laudo técnico de engenharia que comprove o estado
do(s) imóvel(is) objeto(s) da intervenção;
III – Fica estabelecido que o Projeto deverá ser
encaminhado preferentemente à obtenção de recursos externos para o FMHIS -
Fundo Municipal de Habitação de Interesse Social.
Art.
5º Em relação ao Inciso VII do Art. 6º
da Lei nº 1840/2008, a aplicação de recursos do FMHIS - Fundo Municipal de
Habitação de Interesse Social obedecerão aos mesmos critérios definidos nesta
Lei, naquilo que couber.
Art.
6º A aplicação de recursos referidos nesta Lei dependerá de prévia
autorização do Conselho Gestor do Fundo Municipal de Habitação de Interesse
Social.
Art.
7º A aquisição de terrenos vinculada à implantação de Projetos
Habitacionais fica condicionada à apresentação ao Conselho Gestor do Fundo
Municipal de Habitação de Interesse Social de um Plano de Trabalho, onde
deverão constar todos os custos totais do projeto sendo sempre priorizada a
obtenção de recursos externos para a conclusão do projeto.
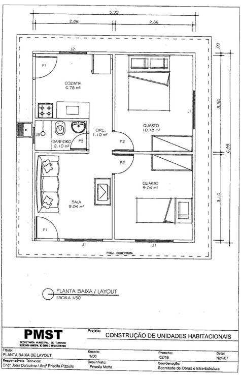
Art.
8º As Unidades Habitacionais previstas nesta lei, deverão obedecer, pelo
menos, à configuração mínima conforme croqui incluído no Anexo I desta Lei.
Art.
9º Os recursos a serem repassados pelo Poder Executivo Municipal ao
FMHIS - Fundo Municipal de Habitação de Interesse Social para os fins definidos
nesta Lei deverão estar previstos na Lei Orçamentária Anual.
Art. 10 Compete a Secretaria
Municipal de Assistência Social a elaboração de Laudo Social, para análise e
parecer quanto às famílias elegíveis ao que dispõe esta Lei.
Art.
11 A transmissão definitiva das áreas doadas far-se-á através de
escritura pública de doação instruída através de Decreto do Executivo Municipal
individualmente formalizado, outorgada diretamente aos beneficiados, ficando os
imóveis gravados com a cláusula de inalienabilidade, impenhorabilidade,
incomunicabilidade e imutabilidade.
§ 1º Os
gravames dos imóveis poderão ser retirados, transcorrido o prazo de 10 (dez)
anos, contados a partir da data de assinatura do Termo de Recebimento de Imóvel
em Doação, conforme modelo no Anexo II, podendo ser requerido a averbação de
cancelamento dos ônus existentes.
§ 2º O
descumprimento do disposto no Caput deste Artigo e/ou sua utilização
diversa da prevista nesta Lei, implicará na reversão do imóvel ao patrimônio do
município que incluirá outra família em vulnerabilidade social respeitando os
mesmos critérios de inclusão.
Art.
12 Todas as oportunidades definidas nesta Lei obedecerão, no que couber,
ao disposto no Decreto nº 6.135, de 26 de junho de 2007, que dispõe sobre o
CADÚNICO – Cadastro Único para Programas Sociais do Governo Federal.
Art.
13 Esta Lei passa a vigorar a partir da data de 01 de janeiro de 2013,
revogadas as disposições em contrário.
Gabinete
do Prefeito Municipal de Santa Teresa, Estado do Espírito Santo, em 14 de
setembro de 2012.
GILSON ANTONIO DE SALES AMARO
PREFEITO MUNICIPAL
Este texto não substitui
o original publicado e arquivado na Câmara Municipal de Santa Teresa.
ANEXO
I – LEI 2.341/2012
Croqui com a configuração mínima para a
construção, reforma e/ou melhoria de Unidades Habitacionais.

ANEXO II – LEI 2.341/2012
TERMO
DE DOAÇÃO
DOADOR
MUNICÍPIO
DE SANTA TERESA
![]()
|
NOME COMPLETO E SEM
ABREVIATURAS DO RECEBEDOR |
|
|
|
|
|
NÚMERO DA CARTEIRA DE
IDENTIDADE/ÓRGÃO |
NÚMERO DO CPF |
|
|
|
|
NOME COMPLETO E SEM
ABREVIATURAS DO CÔNJUGE COMPANHEIRO(A) |
|
|
|
|
DESCRIÇÃO
COMPLETA DO BEM EM DOAÇÃO
Um terreno com benfeitorias medindo
O recebedor declara neste ato, ter ciência da Lei nº 2.341/2012,
principalmente quanto à condição de inalienabilidade, impenhorabilidade,
incomunicabilidade e imutabilidade.
Santa Teresa, ____ de __________ de 20___
assinatura do recebedor